VISITE LIBRE
2025-Nov-30 | 13:00 - 16:00
1226 Rue Étienne-Sanschagrin
Saint-Jean-sur-Richelieu, Montérégie J2W2V6
Maison à étages | MLS: 11992823
625 000 $
Description
Propriété intergénérationnelle clé en main, idéale pour deux générations ou un revenu supplémentaire. Construction récente certifiée Novoclimat, entretenue et améliorée au fil des ans. Grand terrain, garage spacieux, atelier supplémentaire et loft de 300 pi² au sous-sol. Maison lumineuse aux pièces spacieuses et offrant beaucoup de rangement. Cour avec véranda 3 saisons, patio en bois, gazebo et cabanon. Fournaise électrique et thermopompe pour un confort inégalé. Quartier familial près des écoles et services. Deux propriétaires seulement, où une famille a grandi et est prête à passer le flambeau.
Propriété intergénérationnelle clé en main, idéale pour
deux générations ou un revenu supplémentaire. Construction
récente certifiée Novoclimat, entretenue et améliorée au
fil des ans. Grand terrain, garage spacieux, atelier
supplémentaire et loft de 300 pi² au sous-sol. Maison
lumineuse aux pièces spacieuses et offrant beaucoup de
rangement. Cour avec véranda 3 saisons, patio en bois,
gazebo et cabanon. Fournaise électrique et thermopompe pour
un confort inégalé. Quartier familial près des écoles et
services. Deux propriétaires seulement, où une famille a
grandi et est prête à passer le flambeau.
Inclus : - Armoire IKEA dans le walk-in chambre des maîtres - Lave-vaisselle - Abris soleil dans la cour - Store et rideaux - Miroirs salle de bain - Tous les meubles du petit loft
Exclus : Adoucisseur d'eau - Four - Frigo - Laveuse / sécheuse - Micro-onde - Tous les autres biens du propriétaire
Location
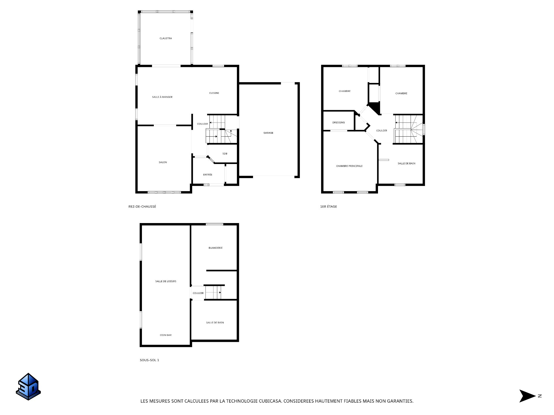
Détails des pièces
| Chambre | Dimensions | Niveau | Revêtement |
|---|---|---|---|
| Chambre à coucher | 11.1 x 23.6 P | Sous-sol | |
| Salle à manger | 12.4 x 13.3 P | Rez-de-chaussée | |
| Cuisine | 11.1 x 4.3 P | Sous-sol | |
| Cuisine | 10.6 x 10.9 P | Rez-de-chaussée | |
| Salon | 12.5 x 15.0 P | Rez-de-chaussée | |
| Salle de bains | 6.6 x 4.2 P | Rez-de-chaussée | |
| Hall d'entrée | 7.4 x 6.0 P | Rez-de-chaussée | |
| Salle de bains | 10.6 x 9.1 P | Sous-sol | |
| Chambre à coucher | 11.1 x 23.6 P | Sous-sol | |
| Cuisine | 11.1 x 4.3 P | Sous-sol | |
| Rangement | 10.6 x 17 P | Sous-sol | |
| Chambre à coucher principale | 12.4 x 13.9 P | 2ième étage | |
| Chambre à coucher | 10.3 x 10.10 P | 2ième étage | |
| Chambre à coucher | 9.10 x 10.10 P | 2ième étage | |
| Salle de bains | 10.2 x 9.1 P | 2ième étage |
Caractéristiques
| Allée | Asphalte |
|---|---|
| Garage | Attaché |
| Stationnement | Au garage, Extérieur |
| Proximité | Autoroute/Voie rapide, École primaire, École secondaire, Garderie/CPE, Hôpital, Parc-espace vert |
| Toiture | Bardeaux d'asphalte |
| Fondation | Béton coulé |
| Efficacité énergétique | Certification Novoclimat |
| Équipement disponible | Climatiseur central, Thermopompe centrale |
| Énergie pour le chauffage | Électricité |
| Particularités | Intergénération |
| Système d'égouts | Municipal |
| Approvisionnement en eau | Municipalité |
| Mode de chauffage | Plinthes électriques |
| Zonage | Résidentiel |
| Sous-sol | Totalement aménagé |
Cette inscription est présentée en collaboration avec EXP AGENCE IMMOBILIÈRE