OPEN HOUSE
2026-Feb-15 | 14:00 - 16:00
20 Carré St-Louis
Châteauguay, Montérégie J6K2E8
Bungalow | MLS: 9810586
$585,000
Description
Well-maintained single-family home offering a functional layout with bright living spaces and thoughtful updates throughout. Featuring an updated kitchen with island, spacious dining area, and a cozy basement family room with fireplace. Recent improvements include electrical and plumbing upgrades, renovated bathrooms, redone basement flooring, roof, and deck staining. Backyard with pool and mature setting. A solid, move-in ready home in a quiet, family-friendly area.
Electrical
-Electrical system improved with additional breakers added
to better distribute loads and improve overall efficiency
-Rewiring completed in portions of the basement and upper
level
-Previously non-compliant junction boxes corrected
-Select outlets grounded for added safety
-New electrical wiring added for the basement bathroom
Plumbing
-Upstairs bathroom plumbing redone following a minor leak
-New plumbing installed behind upstairs bathroom walls
-Leak under upstairs kitchen sink repaired
-Main water intake valve replaced
-Sewage line upgraded with installation of a backflow
prevention valve (clapet)
-Plumbing completed for newly added basement bathroom
Bathrooms
-New basement bathroom added
-Upstairs shower fully updated in 2025, including:
--New shower base and drain
--New shower wall tile
--New shower installation
Basement
-Basement flooring redone
-Added finished bathroom for improved functionality and
versatility
Exterior
-Gutters replaced within the first year of ownership
-Deck stained (Summer 2025)
Pool
-Pool components updated; system in proper working order
Additional Information
-Water heater: November 2014
Inclusions : Microwave hood vent, dishwasher
Exclusions : Curtains in the primary bedroom, blue bedroom and dining room
Location
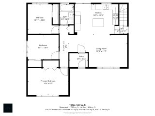
Room Details
| Room | Dimensions | Level | Flooring |
|---|---|---|---|
| Hallway | 6.6 x 4.11 P | Ground Floor | Ceramic tiles |
| Dining room | 20.9 x 11.5 P | Ground Floor | Wood |
| Kitchen | 15.5 x 10.10 P | Ground Floor | Ceramic tiles |
| Primary bedroom | 14.4 x 9.7 P | Ground Floor | Wood |
| Bedroom | 10.11 x 8.9 P | Ground Floor | Wood |
| Bedroom | 10.11 x 10.6 P | Ground Floor | Wood |
| Bathroom | 5.0 x 7.2 P | Ground Floor | Ceramic tiles |
| Hallway | 3.1 x 14.10 P | Ground Floor | |
| Family room | 24.9 x 11.6 P | Basement | Floating floor |
| Bedroom | 13.5 x 12.3 P | Basement | Floating floor |
| Bedroom | 10.0 x 12.0 P | Basement | Floating floor |
| Laundry room | 5.10 x 8.0 P | Basement | |
| Bathroom | 8.6 x 8.1 P | Basement | Tiles |
| Hallway | 13.1 x 10.10 P | Basement | Floating floor |
| Storage | 10.11 x 8.0 P | Basement | |
| Storage | 9.6 x 5.0 P | Basement |
Characteristics
| Basement | 6 feet and over, Finished basement |
|---|---|
| Pool | Above-ground |
| Heating system | Air circulation |
| Driveway | Asphalt |
| Carport | Attached |
| Proximity | Bicycle path, Daycare centre, Elementary school, Highway, Park - green area |
| Equipment available | Central air conditioning |
| Roofing | Elastomer membrane |
| Heating energy | Electricity |
| Landscaping | Fenced, Landscape |
| Parking | In carport, Outdoor |
| Sewage system | Municipal sewer |
| Water supply | Municipality |
| Foundation | Poured concrete |
| Zoning | Residential |
This property is presented in collaboration with KELLER WILLIAMS PRESTIGE