Description
Rare opportunity in the Boisé Saraguay sector. Truly move-in ready, this semi-detached home offers over 2,320 sq. ft., 3 bedrooms, 3 bathrooms, a renovated basement, and a garage. Bright, expanded, and meticulously maintained, it features a private backyard with a pool. Quality homes in this area are limited. Don't miss your chance. See addendum.
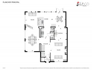
The property is spread over three levels and offers a
functional, well-designed layout, as illustrated in the
attached plans.
Ground Floor:
The ground floor features a bright, open-concept main
living area. It includes two distinct living rooms, a
central kitchen with an island, a breakfast area, and a
dining room located above the garage. A home office and a
powder room are also located on this level. The main
entrance provides access to the staircase leading to both
the upper and lower levels.
Second Floor:
The second floor includes three bedrooms. The primary
bedroom is located in the extension and features a walk-in
closet as well as an ensuite bathroom. Two additional
bedrooms of good size are also located on this level, along
with a second full bathroom accessible from the central
hallway.
Basement:
The basement is fully finished and includes a family room,
a full bathroom, a separate laundry room, and a mechanical
room. The integrated garage is accessible from this level.
The space offers multiple possible uses depending on needs
(family area, recreational space, storage).
Several improvements have been made to this beautiful
property over the years, reflecting careful and consistent
maintenance.
Area and Certificate of Location
A new certificate of location has been ordered. The stated
areas are taken from the City's property assessment roll
and will need to be confirmed upon receipt of the new
certificate of location.
Fireplace
The fireplace is sold without any warranty as to its
compliance with applicable regulations or insurance company
requirements.
Inspection
The choice of inspector must be approved by all parties.
Inclusions : Blinds, light fixtures, curtains, dishwasher, shed, above-ground pool and accessories, garage heating unit.
Exclusions : Furniture and personal effects, and all other items not included in section 4.4.
Location
Room Details
| Room | Dimensions | Level | Flooring |
|---|---|---|---|
| Hallway | 4.5 x 3.0 P | Ground Floor | Ceramic tiles |
| Living room | 17.0 x 12.11 P | Ground Floor | Wood |
| Home office | 10.0 x 8.7 P | Ground Floor | Wood |
| Dinette | 12.3 x 8.8 P | Ground Floor | Wood |
| Kitchen | 19.4 x 13.6 P | Ground Floor | Wood |
| Dining room | 17.11 x 10.10 P | Ground Floor | Wood |
| Living room | 11.3 x 10.4 P | Ground Floor | Wood |
| Washroom | 5.7 x 2.6 P | Ground Floor | Ceramic tiles |
| Primary bedroom | 24.3 x 11.11 P | 2nd Floor | Floating floor |
| Bathroom | 13.1 x 6.3 P | 2nd Floor | Ceramic tiles |
| Walk-in closet | 7.10 x 4.10 P | 2nd Floor | Wood |
| Bedroom | 12.9 x 11.10 P | 2nd Floor | Wood |
| Bathroom | 7.11 x 7.5 P | 2nd Floor | Ceramic tiles |
| Bedroom | 17.7 x 11.6 P | 2nd Floor | Wood |
| Living room | 12.8 x 9.9 P | Basement | Floating floor |
| Laundry room | 16.4 x 7.10 P | Basement | Floating floor |
| Bathroom | 8.8 x 6.9 P | Basement | Ceramic tiles |
| Family room | 17.2 x 10.10 P | Basement | Floating floor |
| Other | 16.4 x 10.10 P | Basement | Floating floor |
| Storage | 9.4 x 7.5 P | Basement | Concrete |
Characteristics
| Pool | Above-ground |
|---|---|
| Bathroom / Washroom | Adjoining to primary bedroom, Whirlpool bath-tub |
| Heating system | Air circulation |
| Driveway | Asphalt |
| Siding | Asphalt shingles |
| Garage | Attached, Heated |
| Proximity | Bicycle path, Cegep, Daycare centre, Elementary school, High school, Highway, Hospital, Park - green area, Public transport, Réseau Express Métropolitain (REM), University |
| Equipment available | Central heat pump, Electric garage door |
| Heating energy | Electricity |
| Basement | Finished basement |
| Parking | Garage, Outdoor |
| Sewage system | Municipal sewer |
| Water supply | Municipality |
| Foundation | Poured concrete |
| Windows | PVC |
| Zoning | Residential |
| Cupboard | Thermoplastic |
This property is presented in collaboration with EXP AGENCE IMMOBILIÈRE