28 Crois. Barabé
Montréal (L'Île-Bizard/Sainte-Geneviève), Montréal H9E1J1
Maison de plain-pied | MLS: 9022947
599 900 $
Description
Bungalow de 3 chambres sur croissant paisible à L'Île-Bizard avec accès notarié au lac des Deux-Montagnes. Aire de vie ouverte lumineuse. Grand terrain intime avec haies.Grand Garage détaché. Emplacement de choix près des écoles, parcs, services, golf Saint-Raphaël et Parc-nature. Accès rapide à Laval par traversier. Un cadre de vie exceptionnel pour les amateurs de plein air.
Charmant bungalow de 3 chambres situé sur un croissant paisible et recherché de L'Île-Bizard, offrant un cadre de vie idéal pour les familles et les amateurs de nature. Bénéficiez d'un accès notarié privilégié au lac des Deux-Montagnes, parfait pour profiter pleinement des plaisirs nautiques et des paysages enchanteurs.
La propriété propose une aire de vie conviviale avec une cuisine fonctionnelle ouverte sur la salle à manger, le tout s'ouvrant sur une agréable terrasse couverte, idéale pour recevoir ou se détendre à l'abri des intempéries. Le salon, chaleureux et lumineux, complète harmonieusement le rez-de-chaussée. Une salle de bain bien aménagée avec baignoire et douche indépendante vient répondre aux besoins quotidiens.
Le sous-sol offre une vaste salle familiale agrémentée d'un poêle au bois, créant une ambiance réconfortante en saison froide, en plus d'une salle de lavage indépendante et de nombreux espaces de rangement. À l'extérieur, vous découvrirez un grand terrain aménagé, bordé de haies pour une intimité optimale, avec foyer extérieur et remise pratique.
La propriété inclut également un garage détaché ainsi que deux allées en asphalte pouvant accueillir jusqu'à 7 véhicules.
Idéalement située, à proximité des écoles primaires, du CEGEP Gérald-Godin, de nombreux parcs, d'une aréna, d'une piscine municipale, de terrains de tennis, d'une bibliothèque et de garderies. Les amateurs de plein air seront comblés par les sentiers de vélo, de ski de fond, les terrains de soccer et les nombreuses possibilités de randonnée.
À distance de marche, profitez du prestigieux Golf Saint-Raphaël (36 trous) ainsi que du magnifique Parc-nature du Bois-de-l'Île-Bizard, offrant plage sablonneuse, aires de pique-nique et accès à la baignade.
En saison, accédez facilement à Laval en moins de 10 minutes via le traversier Île-Bizard -- Laval-sur-le-Lac.
Une opportunité rare dans un secteur prisé, alliant tranquillité, nature et proximité des services. Un véritable havre de paix sans compromis.
Inclus : Fixture
Location
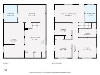
Détails des pièces
| Chambre | Dimensions | Niveau | Revêtement |
|---|---|---|---|
| Hall d'entrée | 3.9 x 12.10 P | Rez-de-chaussée | Bois |
| Hall d'entrée | 3.9 x 12.10 P | Rez-de-chaussée | Bois |
| Salon | 11.11 x 12.10 P | Rez-de-chaussée | Bois |
| Salon | 11.11 x 12.10 P | Rez-de-chaussée | Bois |
| Chambre à coucher principale | 11.1 x 11.11 P | Rez-de-chaussée | Bois |
| Chambre à coucher principale | 11.1 x 11.11 P | Rez-de-chaussée | Bois |
| Chambre à coucher | 11.7 x 5.10 P | Rez-de-chaussée | Bois |
| Chambre à coucher | 11.7 x 5.10 P | Rez-de-chaussée | Bois |
| Chambre à coucher | 11.1 x 8.1 P | Rez-de-chaussée | Bois |
| Chambre à coucher | 11.1 x 8.1 P | Rez-de-chaussée | Bois |
| Cuisine | 19.5 x 11.6 P | Rez-de-chaussée | Bois |
| Cuisine | 19.5 x 11.6 P | Rez-de-chaussée | Bois |
| Salle de bains | 7.3 x 11.6 P | Rez-de-chaussée | Céramique |
| Salle de bains | 7.3 x 11.6 P | Rez-de-chaussée | Céramique |
| Salle familiale | 13.7 x 19.1 P | Sous-sol | Plancher flottant |
| Salle familiale | 13.7 x 19.1 P | Sous-sol | Plancher flottant |
| Salle de lavage | 17.10 x 11.6 P | Sous-sol | Plancher flottant |
| Salle de lavage | 17.10 x 11.6 P | Sous-sol | Plancher flottant |
| Salle de lavage | 8.10 x 11.6 P | Sous-sol | Plancher flottant |
| Salle de lavage | 8.10 x 11.6 P | Sous-sol | Plancher flottant |
| Rangement | 13.2 x 22.7 P | Sous-sol | Béton |
| Rangement | 13.2 x 22.7 P | Sous-sol | Béton |
Caractéristiques
| Sous-sol | 6 pieds et plus, Partiellement aménagé |
|---|---|
| Particularités | Accès à l'eau, Navigable |
| Mode de chauffage | Air soufflé |
| Allée | Asphalte, Double largeur ou plus |
| Stationnement | Au garage, Extérieur |
| Revêtements | Autre, Bois |
| Toiture | Bardeaux d'asphalte |
| Fondation | Béton coulé |
| Proximité | Cegep, École primaire, École secondaire, Garderie/CPE, Golf, Parc-espace vert, Piste cyclable, Sentier de motoneige, Sentier de VTT, Ski de fond, Transport en commun |
| Système d'égouts | Champ d'épuration, Fosse septique |
| Type de fenêtre | Coulissante, Manivelle |
| Garage | Détaché |
| Salle de bains/salle d'eau | Douche indépendante |
| Énergie pour le chauffage | Électricité |
| Foyers-poêles | Foyer au bois, Poêle à bois |
| Approvisionnement en eau | Municipalité |
| Aménagement du terrain | Paysager, Terrain/cour bordé de haies |
| Topographie | Plat |
| Fenêtres | PVC |
| Zonage | Résidentiel |
| Équipement disponible | Thermopompe centrale |
Cette inscription est présentée en collaboration avec EXP AGENCE IMMOBILIÈRE