Propriété

Description

Charmante propriété soigneusement entretenue au fil des années,située dans un secteur paisible.Elle se distingue par son solarium 3 saisons entièrement vitré,offrant une abondance de lumière naturelle.Le rez-de-chaussée propose une grande salle à manger indépendante avec accès direct à la cuisine dotée d'un îlot, un vaste salon avec baie window ainsi qu'une grande chambre.Le sous-sol partiellement aménagé offre la possibilité d'ajouter une seconde chambre ou un espace polyvalent.La cour propose un bel espace intime et dégagé.Une propriété idéale pour s'y installer rapidement ou y apporter sa touche personnelle.Venez découvrir son potentiel!

Propriété à fort potentiel située dans un secteur
tranquille, soigneusement entretenue au fil des années,
offrant une base solide pour y ajouter votre touche
personnelle. Le rez-de-chaussée se distingue par un
solarium 3 saisons entièrement vitré, un véritable atout
pour profiter de la lumière naturelle et de la beauté des
saisons. Ce coin lumineux et agréable se prête parfaitement
à la détente ou à des moments conviviaux en famille ou
entre amis. Les pièces principales, vastes et
interchangeables selon vos besoins, comprennent un grand
salon lumineux avec baie window, une salle à manger
indépendante idéale pour recevoir, une cuisine
fonctionnelle avec îlot, une grande chambre et une salle de
bain complète avec douche et bain séparé. Les grandes
fenêtres dans chaque pièce laissent entrer une abondance de
lumière naturelle, apportant une atmosphère chaleureuse et
accueillante tout au long de la journée. Les photos
présentées ont été stagées virtuellement afin de démontrer
les nombreuses possibilités d'aménagement. Le sous-sol
partiellement aménagé offre un bel espace polyvalent avec
potentiel d'y ajouter une seconde chambre. Ce vaste espace
vous permettra de personnaliser cette propriété selon vos
envies. À l'extérieur, la grande cour intime, entourée
d'arbres matures, vous offre un véritable havre de paix,
parfait pour profiter des journées ensoleillées ou pour y
installer un jardin paysager. Que vous cherchiez à y
emménager rapidement ou à y apporter quelques améliorations
pour en faire votre propre espace de vie, cette maison est
idéale pour ceux qui souhaitent combiner confort,
tranquillité et possibilités infinies.

Inclus : Le piano, le buffet au fond du salon, le micro-ondes.

Location


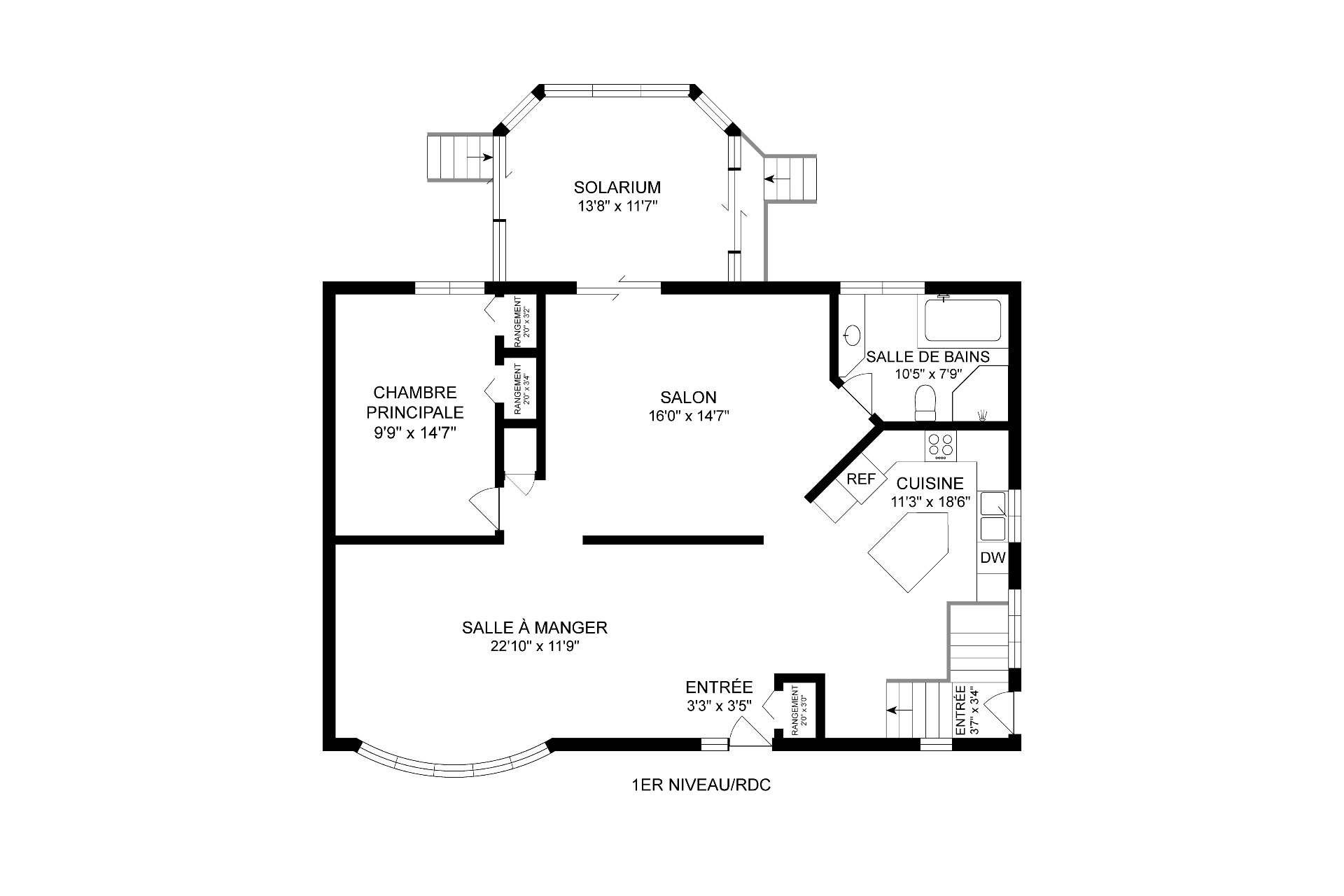
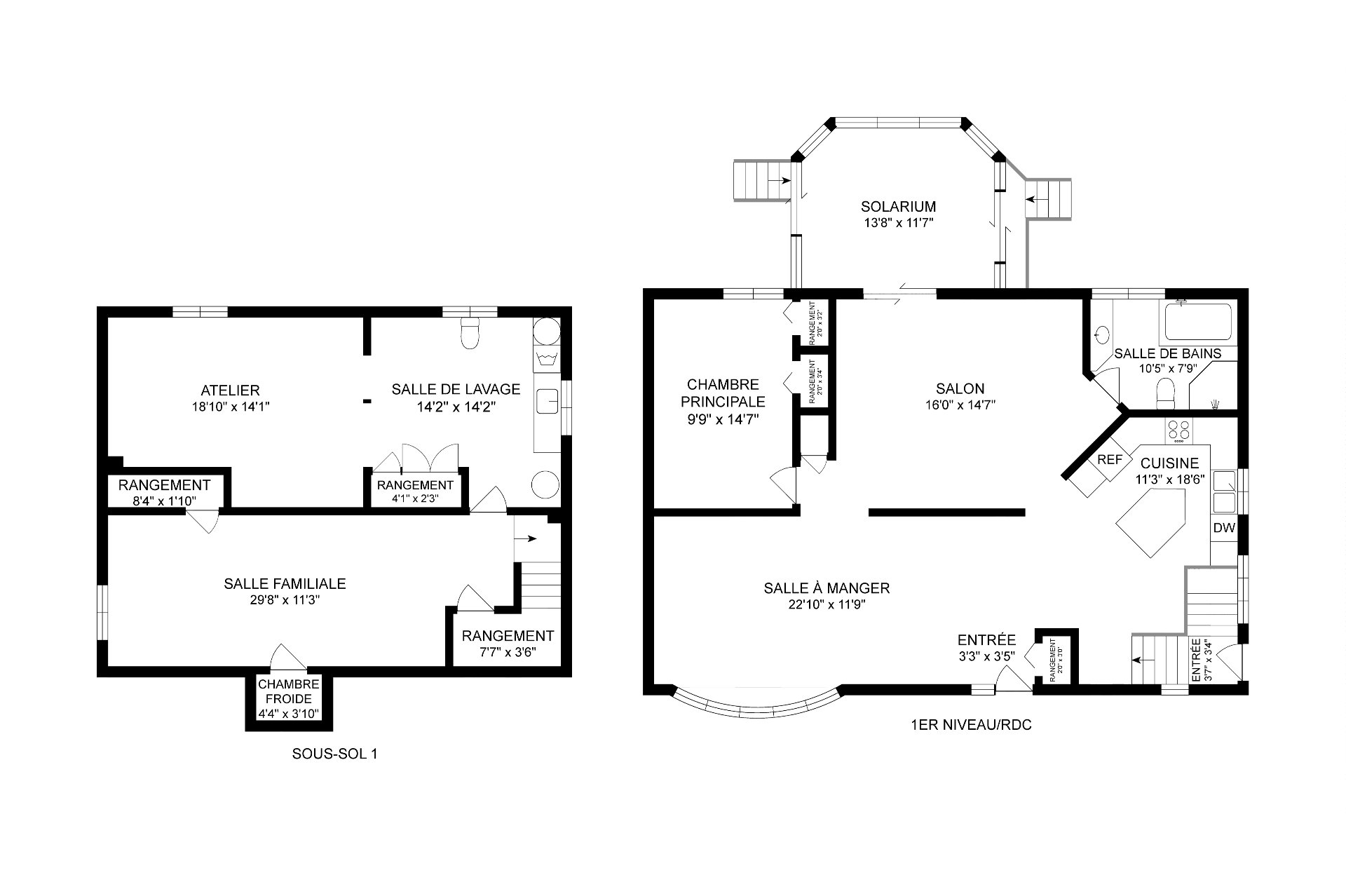
Détails des pièces

Chambre Dimensions Niveau Revêtement
Chambre à coucher 9.9 x 14.7 P Rez-de-chaussée Bois
Cuisine 11.3 x 18.6 P Rez-de-chaussée Céramique
Salon 16.0 x 14.7 P Rez-de-chaussée Bois
Salle à manger 22.10 x 11.9 P Rez-de-chaussée Bois
Salle de bains 10.5 x 7.9 P Rez-de-chaussée Céramique
Solarium 13.8 x 11.7 P Rez-de-chaussée Céramique
Salle familiale 29.8 x 11.3 P Sous-sol Tapis
Salle de lavage 14.2 x 14.2 P Sous-sol Béton

Caractéristiques

Sous-sol 6 pieds et plus, Partiellement aménagé
Allée Asphalte
Proximité Autoroute/Voie rapide, École primaire, Garderie/CPE, Parc-espace vert, Piste cyclable, Transport en commun
Stationnement Extérieur
Système d'égouts Municipal
Approvisionnement en eau Municipalité
Topographie Plat
Zonage Résidentiel
Aménagement du terrain Terrain/cour bordé de haies

Cette inscription est présentée en collaboration avec EXP AGENCE IMMOBILIÈRE

Contactez-moi

J'accepte d'être contacté par Jonathan Cabana par appel, email et SMS. Pour vous désinscrire, vous pouvez répondre 'stop' à tout moment ou cliquer sur le lien de désinscription dans les emails. Des frais de message et de données peuvent s’appliquer. Politique de confidentialite et Condition de services.