VISITE LIBRE
2026-Apr-12 | 14:00 - 16:00
Description
Magnifique spacieux bungalow rénové dans le secteur prisé de Westpark. Cette maison de 3 chambres à coucher et 2,5 salles de bains comprend une suite principale agrandie avec walk-in, armoires intégrées et salle de bains attenante. Aménagement à aire ouverte, avec nouveaux planchers en bois franc. Garage double comprend un espace de rangement séparé, pourrait également servir d'atelier. L'arrière-cour offre une terrasse à deux niveaux et un gazebo. Située à quelques pas des écoles, de la synagogue et du parc Centennaire, cette maison témoigne d'un véritable souci du détail et d'une fierté de propriétaire évidente. À voir absoluement!
Inclus : Réfrigérateur, cuisinière, lave-vaisselle, laveuse, sécheuse, réfrigérateur dans la salle fournaise, tous les luminaires, tous les stores, le gazebo, le mobilier de terrasse et les meubles sous le gazebo, le foyer extérieur, le chauffe-eau.
Location
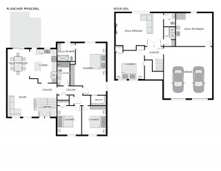
Détails des pièces
| Chambre | Dimensions | Niveau | Revêtement |
|---|---|---|---|
| Salon | 16.2 x 12.10 P | Rez-de-chaussée | Bois |
| Salon | 16.2 x 12.10 P | Rez-de-chaussée | Bois |
| Salle à manger | 12.10 x 9.3 P | Rez-de-chaussée | Bois |
| Salle à manger | 12.10 x 9.3 P | Rez-de-chaussée | Bois |
| Cuisine | 14.6 x 11.6 P | Rez-de-chaussée | Bois |
| Cuisine | 14.6 x 11.6 P | Rez-de-chaussée | Bois |
| Chambre à coucher principale | 22.3 x 13.0 P | Rez-de-chaussée | Bois |
| Chambre à coucher principale | 22.3 x 13.0 P | Rez-de-chaussée | Bois |
| Autre | 7.9 x 7.3 P | Rez-de-chaussée | Bois |
| Autre | 7.9 x 7.3 P | Rez-de-chaussée | Bois |
| Autre | 6.4 x 4.4 P | Rez-de-chaussée | Bois |
| Autre | 6.4 x 4.4 P | Rez-de-chaussée | Bois |
| Chambre à coucher | 12.5 x 10.3 P | Rez-de-chaussée | Parqueterie |
| Chambre à coucher | 12.5 x 10.3 P | Rez-de-chaussée | Parqueterie |
| Chambre à coucher | 12.5 x 10.3 P | Rez-de-chaussée | Tapis |
| Chambre à coucher | 12.5 x 10.3 P | Rez-de-chaussée | Tapis |
| Salle de bains | 10.2 x 4.9 P | Rez-de-chaussée | Céramique |
| Salle de bains | 10.2 x 4.9 P | Rez-de-chaussée | Céramique |
| Hall d'entrée | 10.10 x 3.8 P | Rez-de-chaussée | Bois |
| Hall d'entrée | 10.10 x 3.8 P | Rez-de-chaussée | Bois |
| Salle familiale | 20.8 x 13.11 P | Sous-sol | Bois |
| Salle familiale | 20.8 x 13.11 P | Sous-sol | Bois |
| Chambre à coucher | 12.6 x 12.5 P | Sous-sol | Bois |
| Chambre à coucher | 12.6 x 12.5 P | Sous-sol | Bois |
| Salle d'eau | 5.10 x 5.0 P | Sous-sol | Céramique |
| Salle d'eau | 5.10 x 5.0 P | Sous-sol | Céramique |
| Salle de lavage | 7.9 x 4.8 P | Sous-sol | Couvre-sol souple |
| Salle de lavage | 7.9 x 4.8 P | Sous-sol | Couvre-sol souple |
| Autre | 15.10 x 14.6 P | Sous-sol | Béton |
| Autre | 15.10 x 14.6 P | Sous-sol | Béton |
Caractéristiques
| Sous-sol | 6 pieds et plus, Totalement aménagé |
|---|---|
| Mode de chauffage | Air soufflé |
| Allée | Asphalte, Double largeur ou plus |
| Salle de bains/salle d'eau | Attenante à la chambre principale |
| Stationnement | Au garage, Extérieur |
| Proximité | Autoroute/Voie rapide, Cegep, École primaire, École secondaire, Garderie/CPE, Golf, Hôpital, Parc-espace vert, Piste cyclable, Réseau Express Métropolitain (REM), Ski de fond, Transport en commun |
| Revêtements | Bardeaux d'asphalte, Brique |
| Fondation | Béton coulé |
| Équipement disponible | Climatiseur central, Porte de garage électrique |
| Aménagement du terrain | Clôturé |
| Foyers-poêles | Foyer au bois |
| Énergie pour le chauffage | Gaz naturel |
| Garage | Intégré |
| Système d'égouts | Municipal |
| Approvisionnement en eau | Municipalité |
| Topographie | Plat |
| Zonage | Résidentiel |
Cette inscription est présentée en collaboration avec EXP AGENCE IMMOBILIÈRE