VISITE LIBRE
2026-Mar-29 | 14:00 - 16:00
Description
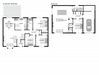
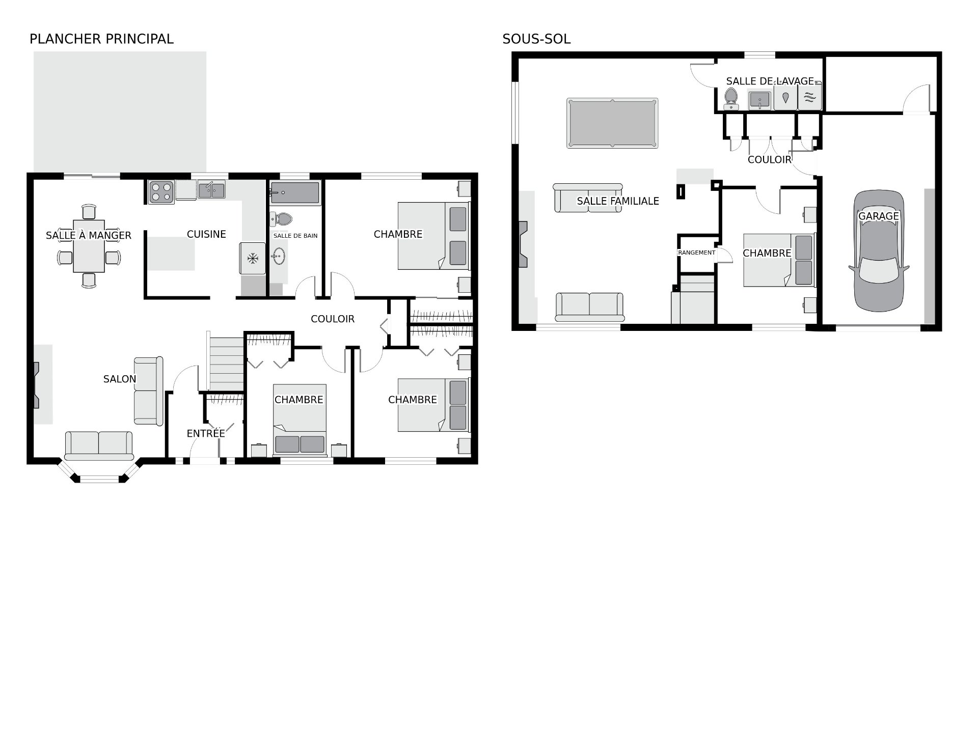
Solide maison familiale située dans le secteur recherché de Briarwood. Cette propriété soigneusement entretenue offre 3+1 chambres à coucher et une salle de bain complète, une salle d'eau, ainsi qu'un vestibule fermé et un garage. Le sous-sol aménagé comprend une pièce fermée, idéale pour un bureau à domicile ou une salle de jeux. Une terrasse et un patio prolongent l'espace de vie à l'extérieur. Située dans un quartier bien établi, à distance de marche du parc Westminster, avec sa piscine communautaire et ses terrains sportifs, ainsi que de l'école primaire Wilder Penfield. Une belle propriété prête à accueillir sa prochaine famille!
Les poêles, foyers, appareils à combustion et cheminées sont vendus sans aucune garantie quant à leur conformité aux réglementations en vigueur et aux exigences des compagnies d'assurance.
Inclus : Tous les luminaires, tous les couvre-fenêtres, thermopompe, remise, lave-vaisselle, table de billard, 2 tabourets dans la cuisine et 2 tabourets au bar.
Exclus : Réfrigérateur, cuisinière, laveuse et sècheuse
Location
Détails des pièces
| Chambre | Dimensions | Niveau | Revêtement |
|---|---|---|---|
| Autre | 6.7 x 5.8 P | Rez-de-chaussée | Céramique |
| Autre | 6.7 x 5.8 P | Rez-de-chaussée | Céramique |
| Salon | 14.7 x 12.1 P | Rez-de-chaussée | Parqueterie |
| Salon | 14.7 x 12.1 P | Rez-de-chaussée | Parqueterie |
| Salle à manger | 11.4 x 10.0 P | Rez-de-chaussée | Parqueterie |
| Salle à manger | 11.4 x 10.0 P | Rez-de-chaussée | Parqueterie |
| Cuisine | 10.11 x 10.6 P | Rez-de-chaussée | Linoléum |
| Cuisine | 10.11 x 10.6 P | Rez-de-chaussée | Linoléum |
| Chambre à coucher principale | 13.6 x 11.0 P | Rez-de-chaussée | Parqueterie |
| Chambre à coucher principale | 13.6 x 11.0 P | Rez-de-chaussée | Parqueterie |
| Chambre à coucher | 10.10 x 9.11 P | Rez-de-chaussée | Parqueterie |
| Chambre à coucher | 10.10 x 9.11 P | Rez-de-chaussée | Parqueterie |
| Chambre à coucher | 10.0 x 9.7 P | Rez-de-chaussée | Parqueterie |
| Chambre à coucher | 10.0 x 9.7 P | Rez-de-chaussée | Parqueterie |
| Salle de bains | 10.11 x 4.11 P | Rez-de-chaussée | Céramique |
| Salle de bains | 10.11 x 4.11 P | Rez-de-chaussée | Céramique |
| Hall d'entrée | 20.8 x 8.3 P | Rez-de-chaussée | Parqueterie |
| Hall d'entrée | 20.8 x 8.3 P | Rez-de-chaussée | Parqueterie |
| Salle familiale | 12.7 x 14.9 P | Sous-sol | Parqueterie |
| Salle familiale | 12.7 x 14.9 P | Sous-sol | Parqueterie |
| Salle de jeux | 12.4 x 18.5 P | Sous-sol | Parqueterie |
| Salle de jeux | 12.4 x 18.5 P | Sous-sol | Parqueterie |
| Bureau à domicile | 12.9 x 9.2 P | Sous-sol | Parqueterie |
| Bureau à domicile | 12.9 x 9.2 P | Sous-sol | Parqueterie |
| Salle d'eau | 10.3 x 4.9 P | Sous-sol | Céramique |
| Salle d'eau | 10.3 x 4.9 P | Sous-sol | Céramique |
Caractéristiques
| Sous-sol | 6 pieds et plus, Totalement aménagé |
|---|---|
| Mode de chauffage | Air soufflé |
| Revêtements | Aluminium, Brique |
| Allée | Asphalte |
| Stationnement | Au garage, Extérieur |
| Proximité | Autoroute/Voie rapide, Cegep, École primaire, École secondaire, Garderie/CPE, Hôpital, Parc-espace vert, Piste cyclable, Réseau Express Métropolitain (REM), Transport en commun |
| Toiture | Bardeaux d'asphalte |
| Armoires | Bois |
| Appareils en location | Chauffe-eau |
| Énergie pour le chauffage | Électricité, Gaz naturel |
| Foyers-poêles | Foyer au bois, Poêle à bois |
| Garage | Intégré, Simple largeur |
| Système d'égouts | Municipal |
| Approvisionnement en eau | Municipalité |
| Topographie | Plat |
| Équipement disponible | Porte de garage électrique, Thermopompe centrale |
| Zonage | Résidentiel |
Cette inscription est présentée en collaboration avec EXP AGENCE IMMOBILIÈRE