Propriété

Description

Élégante propriété de style cottage située dans un quartier paisible et convoité. Aire de vie lumineuse au rez-de-chaussée avec plafond d'environ 9 pi, superbes planchers de chêne et fenestration abondante. Cuisine moderne avec comptoirs de quartz, parfaitement intégrée à l'espace ouvert. À l'étage, deux chambres de belles dimensions, dont une chambre principale spacieuse, ainsi qu'une salle de bain principale signée par un designer et publiée dans des revues de design. Sous-sol entièrement aménagé offrant la possibilité d'une 3e chambre. Vaste cour arrière intime, idéale pour profiter pleinement des beaux jours. À voir!


Située au 381 rue Toulouse à Otterburn Park, cette élégante
propriété de style cottage séduit par son esthétique
soignée, son ambiance chaleureuse et son emplacement au
coeur d'un quartier paisible et convoité.

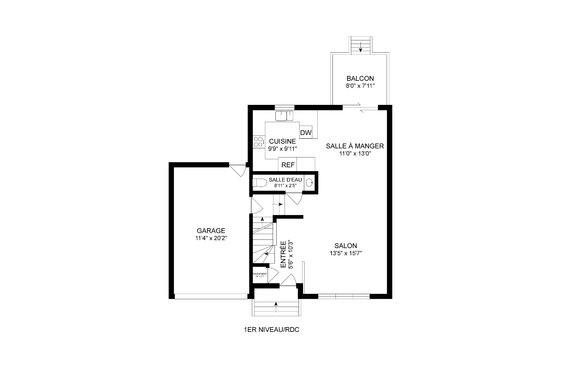
Dès l'entrée, on est accueilli par des espaces lumineux et
harmonieusement aménagés, où chaque détail a été pensé avec
goût. Le rez-de-chaussée propose une aire de vie
conviviale, sublimée par de superbes planchers de chêne et
un plafond généreux d'environ 9 pieds, créant une sensation
d'ouverture et de confort absolu. La fenestration abondante
inonde les pièces de lumière naturelle tout au long de la
journée.

La cuisine contemporaine, au design épuré, se distingue par
ses comptoirs en quartz, ses lignes intemporelles et son
intégration parfaite à l'espace ouvert. Un lieu aussi
fonctionnel qu'inspirant, idéal pour le quotidien comme
pour recevoir.

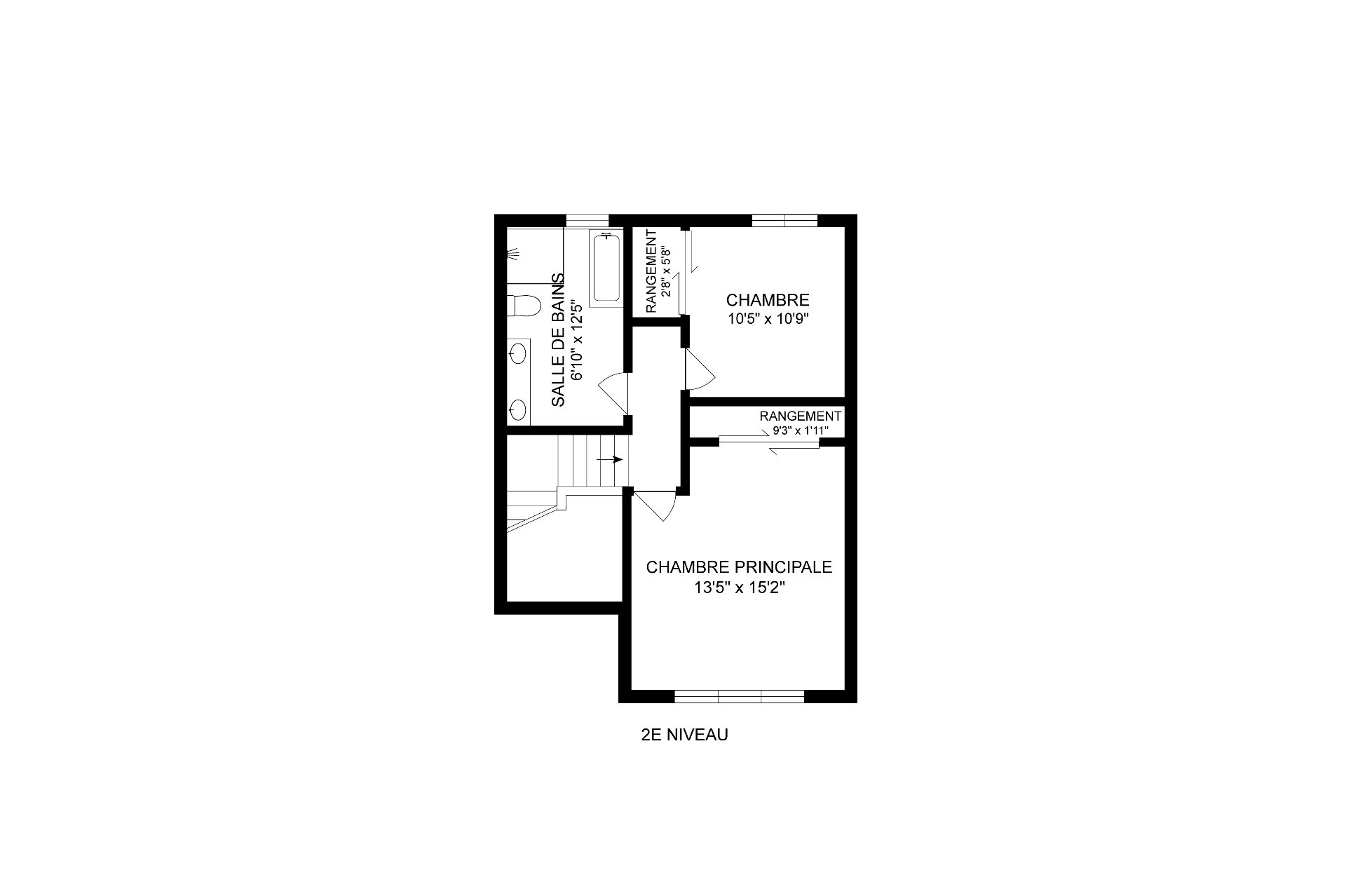
À l'étage, on retrouve deux chambres de belles dimensions,
dont une chambre principale aux proportions
impressionnantes, offrant un véritable havre de paix.

La salle de bain principale, entièrement repensée par un
designer et ayant fait l'objet de publications dans des
revues de design, évoque l'élégance des plus beaux décors
éditoriaux : matériaux nobles, robinetterie raffinée et
ambiance spa digne d'un hôtel-boutique.

Le sous-sol entièrement aménagé ajoute une polyvalence
remarquable, avec la possibilité d'y aménager une troisième
chambre, un bureau et un espace familial selon vos besoins.

À l'extérieur, le vaste terrain arrière, intime et bordé de
verdure, constitue un véritable prolongement de l'espace de
vie. Il offre un cadre paisible et de multiples
possibilités d'aménagement pour profiter pleinement des
beaux jours, en toute tranquillité.

Une propriété clé en main où design, lumière et qualité de
vie s'unissent avec élégance. Un coup de coeur assuré!

Les visites débuteront le samedi 7 février 2026. Toutes les
offres devront être ouverte un minimum de 48h. Toutes
offres d'achat devra être accompagnée d'un pré approbation
bancaire.

Inclus : Laveuse, sécheuse, lave-vaisselle, hotte de cuisine, stores, toiles solaires, ouvre-porte de garage électrique, luminaires, aspirateur central et accessoires.

Exclus : Plafonnier central cuisine, Plafonnier corridor deuxième étage et plafonnier central chambre secondaire, rideaux.

Location


Détails des pièces

Chambre Dimensions Niveau Revêtement
Hall d'entrée 5.6 x 10.3 P Rez-de-chaussée Céramique
Salon 13.5 x 15.7 P Rez-de-chaussée Bois
Salle à manger 11.0 x 13.0 P Rez-de-chaussée Bois
Cuisine 9.9 x 9.11 P Rez-de-chaussée Céramique
Salle d'eau 8.11 x 2.5 P Rez-de-chaussée Céramique
Chambre à coucher principale 13.5 x 15.2 P 2ième étage Bois
Chambre à coucher 10.5 x 10.9 P 2ième étage Bois
Salle de bains 6.10 x 12.5 P 2ième étage Céramique
Salle familiale 19.11 x 27.8 P Sous-sol Autre

Caractéristiques

Sous-sol 6 pieds et plus, Totalement aménagé
Allée Asphalte
Garage Attaché, Simple largeur
Stationnement Au garage, Extérieur
Toiture Bardeaux d'asphalte
Fondation Béton coulé
Équipement disponible Climatiseur mural, Installation aspirateur central, Porte de garage électrique
Salle de bains/salle d'eau Douche indépendante
Proximité École primaire, École secondaire, Garderie/CPE, Golf, Parc-espace vert, Piste cyclable, Transport en commun
Énergie pour le chauffage Électricité
Foyers-poêles Foyer au bois
Système d'égouts Municipal
Approvisionnement en eau Municipalité
Topographie Plat
Mode de chauffage Plinthes électriques
Zonage Résidentiel
Aménagement du terrain Terrain/cour bordé de haies

Cette inscription est présentée en collaboration avec EXP AGENCE IMMOBILIÈRE

Contactez-moi

J'accepte d'être contacté par Jonathan Cabana par appel, email et SMS. Pour vous désinscrire, vous pouvez répondre 'stop' à tout moment ou cliquer sur le lien de désinscription dans les emails. Des frais de message et de données peuvent s’appliquer. Politique de confidentialite et Condition de services.